Ngôi nhà ở Ba Lan phản ứng với ánh sáng mặt trời bằng cách di chuyển thân nhà để cản bớt nắng.
Ngôi nhà ở ngoại ô miền trung Ba Lan có tên Quadrant Home, tổng diện tích khoảng 500m2, được xây 2 tầng. Vì yêu thích những bộ phim khoa học viễn tưởng với những công trình có thể biến đổi, lắp ghép linh hoạt, gia chủ đã chi hơn 2.000 USD dành riêng cho bản thiết kế và 400.000 USD (hơn 9 tỷ đồng) để xây dựng.










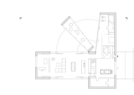
Quadrant Home có kiến trúc nhà hình chữ L. Phần thân nhà nằm giữa có thể di chuyển tự động từ phòng spa sang phòng khách. Ảnh: Engineering News.
Theo chủ thầu công trình, tùy thuộc vào thời gian trong năm, sự thay đổi vị trí của căn nhà sẽ điều chỉnh lượng ánh sáng đi vào nhà. Vào mùa hè, phần di chuyển sẽ có xu hướng khép vào, giúp căn nhà mát hơn. Còn mùa đông, phần chữ L sẽ mở ra, cho phép nhiều ánh sáng vào hơn. Trong ngày, căn nhà cũng có thể di chuyển để tạo bóng râm khi cần thiết.
Ngoài sân có một hệ thống đường ray được gắn dưới đất cho phép căn nhà di chuyển theo ý muốn. Toàn bộ quá trình di chuyển được thực hiện tự động thông qua hệ thống cảm biến, tốc độ chuyển động sẽ theo chuyển động của Mặt Trời. Gia chủ cũng có thể đẩy căn phòng di chuyển bằng tay. Bên cạnh đó, nhà còn có hệ thống điều chỉnh rèm tự động.
Tuy thiết kế mặt trước trông có vẻ hơi đơn điệu nhưng không gian mở rộng về khu vườn lại tạo ra sự thoáng đãng và rộng rãi rất ấn tượng.
